7085 Cerritos Avenue

Stanton, CA 90680

$ 630,000

Price

2

Beds

2.5

Baths

981 Sq. Ft.

$642 / Sq. Ft.

170 Days On Market

Favorite

Share

Park Villas Building

Listed By Amanda Aviles (DRE# 02085077) at Keller Williams Realty (714-673-2515).

Have You Been Pre-Qualified? Start Now

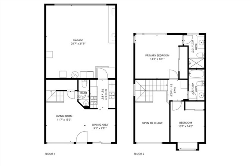
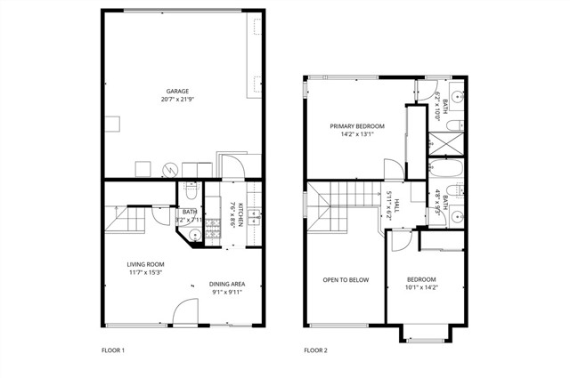
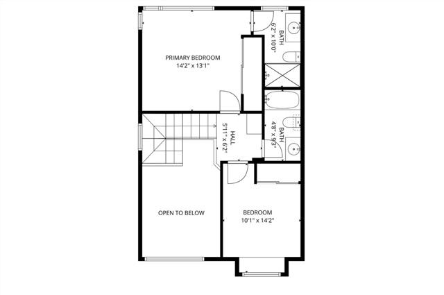
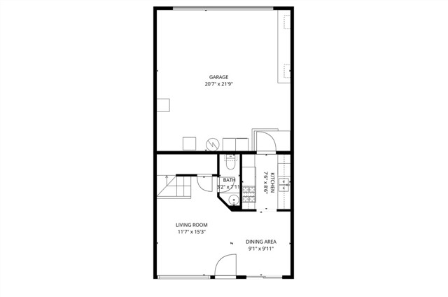
Updated, Move-In-Ready Condo Offering Comfort, Privacy, and Convenience Spacious end-unit condo in a sought-after gated community, offering privacy, security, and extensive updates throughout. This move-in-ready home features an attached two-car garage with custom storage, a newer water heater and furnace, and convenient in-garage laundry hookups. Inside, enjoy a bright living and dining area with a newer sliding glass door leading to a private patio. Updates include new flooring, smooth ceilings, upgraded baseboards and crown molding, remodeled bathrooms, a complete kitchen renovation, updated plumbing, new windows, and newer heating and A/C. The primary suite features an updated en-suite bath, while the secondary bedroom is served by a full bath nearby. Community amenities include a pool, spa, secure gated access, and well-maintained grounds. Conveniently located near Knott’s Berry Farm, Disneyland, shopping, dining, and top-rated schools — this home combines comfort, convenience, and value.

Show More
Property Type Condominium
Lot Size 981 sq. ft.
Year Built 1984
MLS # PW25223386
Listing Type Closed
Cooling Central Air
Pool Community
Laundry In Garage
Gated Community Yes

Last Updated: 157 days ago

Payment Calculator

40% Complete (success)
80% Complete (danger)
20% Complete
80% Complete (danger)
60% Complete (warning)
Principal and Interest
Property Taxes
Homeowners' Insurance
HOA Dues
Mortgage Insurance
Image Calculator Icon Customize Calculations | Compare Mortgage Rates

Property Details for: 7085 Cerritos Avenue

Interior Features

Bathroom Information
  • 2 full baths, 1 half bath
Laundry Information
  • In Garage
Interior Features
  • Ceiling Fan(s)
  • High Ceilings
  • Recessed Lighting
Heating & Cooling
  • Central Air

Parking / Garage, Multi-Unit Information, Location Details

Interior Information
  • Ceiling Fan(s)
  • High Ceilings
  • Recessed Lighting
Community Features
  • Units in Complex (Total) 31

Exterior Features

Pool & Spa Information
  • Community
  • Community
Building Information
  • Total Floors: 2

Property / Lot Details

Property Features
  • Neighborhood
Lot Information
  • Lot Size (Sq. Ft) 981
Property Information
  • Attached
  • Tax Parcel Number: 93891032

Recently Sold Homes Near 7085 Cerritos Avenue

Nearby Businesses

  • Grocery Stores
  • Drug Stores
  • Coffee Shops
  • Restaurants
  • Health & Medical
  • Fitness & Activity
  • Arts & Entertainment
  • Nightlife & Bars
    Browse all businesses in Stanton, CA, 90680

    Tour This Condo

    TUESDAY

    28

    APR

    WEDNESDAY

    29

    APR

    THURSDAY

    30

    APR

    FRIDAY

    1

    MAY

    SATURDAY

    2

    MAY

    SUNDAY

    3

    MAY

    MONDAY

    4

    MAY

    Schedule A Tour
    Ryan Case, Licensed Realtor & Team Lead

    Ryan Case

    Licensed Realtor & Team Lead

    949-570-4445 Contact Ryan Case

    Similar Condos For Sale

    For Sale

    $ 659,000

    3 beds, 2.5 baths, 1,158 sq.ft.

    7101 Cerritos Avenue #21 ...
    View All 39 Condos